
77
Dodatek
Èetina
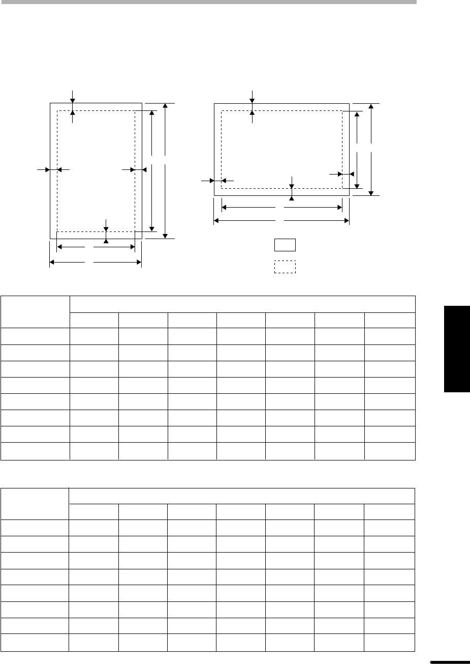
OBLAST TISKU
Oblast tisku tiskárny je uvedena níe.
E
E
E
E
F
F
G
D C
C
D
B A
A
B
G
600 dpi
Velikost papíru
Body
ABCDEFG
Letter 5100 4904 6600 6400 100 96 100
Legal 5100 4904 8400 8200 100 96 100
Invoice 3300 3104 5100 4900 100 96 100
A4 4960 4760 7015 6815 100 100 100
A5 3496 3296 4960 4760 100 100 100
B5 4299 4104 6070 5870 100 95 100
Folio 5100 4904 7800 7600 100 96 100
Foolscap 5100 4904 7440 7240 100 96 100
300 dpi
Velikost papíru
Body
ABCDEFG
Letter 2550 2456 3300 3200 50 44 50
Legal 2550 2456 4200 4100 50 44 50
Invoice 1650 1552 2550 2450 50 48 50
A4 2480 2384 3507 3407 50 46 50
A5 1748 1648 2480 2380 50 50 50
B5 2149 2056 3035 2935 50 43 50
Folio 2550 2456 3900 3800 50 44 50
Foolscap 2550 2456 3720 3620 50 44 50
Na íøku
Velikost papíru
Oblast tisku
Na výku
Kommentare zu diesen Handbüchern