
40
GENERAL
INFORMATION
PART NAMES AND FUNCTIONS
Part names and functions
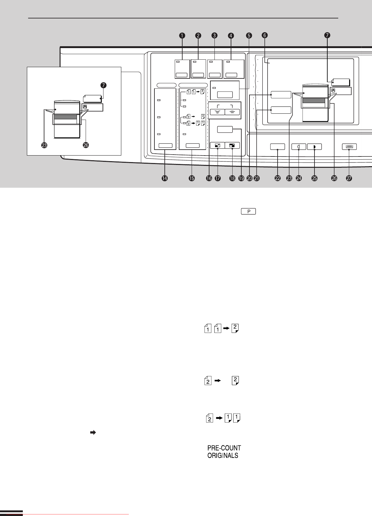
Operation Panel
q COVERS key and indicator (p.55)
Press to select the covers feature.
(This key functions only when an optional docu-
ment feeder is installed on the copier.)
w ERASE key and indicator (p.15)
Press to select the centre erase and/or edge
erase modes.
e MARGIN SHIFT key and indicator (p.17)
Press to select the margin shift feature.
r DUAL PAGE COPY key and indicator (p.14)
Makes individual copies of two originals placed
side by side on the document glass.
t AUTO IMAGE key and indicator (p.12)
Press for automatic copy ratio selection.
y Message display
Displays information to assist the operator in
programming the copier and in recovering a job
after a misfeed. Information about copier features
can also be displayed.
u Original size display
The original paper size is displayed.
i INFORMATION key and indicator (p.5)
Press for operation guidance on 1. DUPLEX, 2.
DOCUMENT FEEDER, 3. SORTER, and 4.
OTHER FEATURES.
Press for guidance when a misfeed occurs, when
adding toner, or when used toner must be
disposed of.
o SCROLL DISPLAY key
Press to scroll the display for more information
when an arrow ( ) appears at the end of a
message or at the end of a header line at the
beginning of a message.
Displays the total number of copies made to date
if pressed during standby.
Press to change the parameters for the MARGIN
SHIFT and ERASE features.
!0 Copy quantity display
Displays the specified number of copies.
!1 PROGRAM ( ) key (p.20)
Press to select the job memory mode.
!2 INTERRUPT key and indicator (p.22)
Interrupts a copy run.
!3 LCD contrast control
Used to control the contrast of the message
display.
!4 SORTER key and indicators (p.58)
Press to select the sorter modes when the sorter
or staple sorter is installed. (The sorter and staple
sorter are optional.)
!5 ORIGINAL TO COPY key and indicators
Press to select one-sided and two-sided copy
modes.
: Two-sided copies from single-
sided originals. (Can be selected
only when an optional duplex
module is installed.) “EVEN NUM-
BER” or “ODD NUMBER” must be
selected in accordance with the
number of originals.
: Two-sided copies from two-sided
originals. (Can be selected only
when both an optional document
feeder and duplex module are
installed.)
: Single-sided copies from two-
sided originals. (Can be selected
only when an optional document
feeder is installed.)
: Indicates that the number of
originals will be counted. (Can be
selected only when an optional
document feeder is installed.)
DUAL PAGE
COPY
MARGIN
SHIFT
ERASECOVERS
LIGHT DARK
100%
TRAY SELECT
EXPOSURE
AUTO
MANUAL
PHOTO
ZOOM
AUTO
IMAGE
SORT
STAPLE
SORT
GROUP
EVEN NUMBER
ODD NUMBER
(ORIGINALS)
PRE-COUNT
ORIGINALS
SORTER
ORIGINAL TO COPY
1 0 0 %
COPY RATIO
EXPOSURE
ORIGINAL
AUTO
AUTO PAPER
SELECT
READY TO COPY.
A4
A4
A4
R
1.
A3
2.
ORIGINAL
AUTO PAPER
SELECT
8
1
/
2
x11
8
1
/
2
x11
8
1
/
2
x11
R
1.
11x17
2.
ORIGINAL
AUTO PAPER
SELECT
8
1
/
2
x11
8
1
/
2
x11
8
1
/
2
x11
R
1.
11x17
2.
Inch system
Downloaded From ManualsPrinter.com Manuals
Kommentare zu diesen Handbüchern