
6
R-314FS
R-316FS
GRAPHIC SHEET AND MEMBRANE SWITCH REPLACEMENT
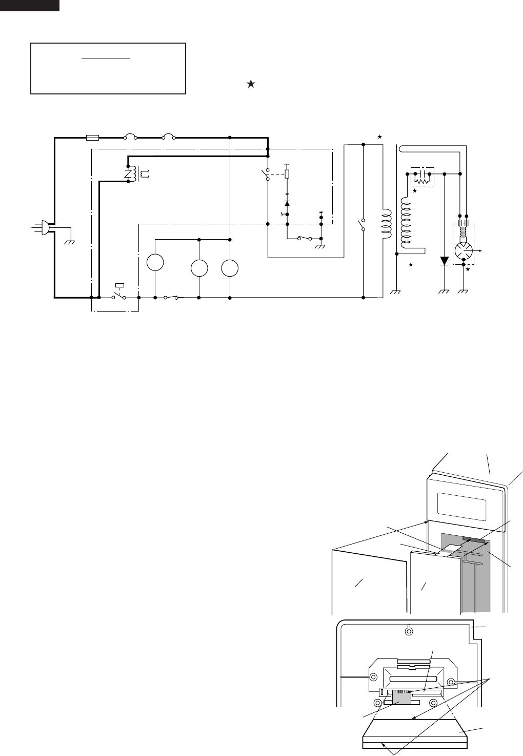
Figure O-1. Oven Schematic-Off Condition
SCHEMATIC
NOTE: CONDITION OF OVEN
1. DOOR CLOSED
2. CLOCK APPEARS ON DISPLAY
120V AC
60 Hz
OVEN
LAMP
OVEN LAMP
RELAY
TURN-
TABLE
MOTOR
FAN
MOTOR
POWER
TRANSFORMER
MONITOR
SWITCH
RECTIFIER
MAGNETRON
SECONDARY
INTERLOCK
SWITCH
TTM
OL
FM
MONITOR
FUSE 20A
N.O.
N.O.
COM.
COM.
DOOR
SENSING
SWITCH
(RY1)
(RY2)
CONTROL UNIT
PRIMARY
INTERLOCK
RELAY
OVEN THERMAL
CUT-OUT
MG. THERMAL CUT-OUT
GRN
B2 B1
CAPACITOR
0.94µF
AC 2200V
NOTE: " " indicates components with potential above 250V.
Removal
1. Disconnect the power supply cord and then remove
outer case.
2. Open the door and block it open.
3. Discharge high voltage capacitor.
4. Remove the control panel assembly, referring to chapter
of CONTROL PANEL ASSEMBLY REMOVAL.
5. Remove the three (3) screws holding the control unit to
the control panel frame. And remove the control unit.
6. Remove the rubber connector from the long slit on the
control panel frame.
7. Tear away the graphic sheet from the control panel
frame.
8. Tear away the membrane switch from the control panel
frame.
Installation
1. Remove remaining adhesive on the control panel frame
surfaces with a soft cloth soaked in alcohol.
2. Tear the backing paper from the new membrane switch.
3. Insert the ribbon cable of the membrane switch into the slit
of the control panel frame.
4. Adjust the upper edge and right edge of the membrane
switch to the small depression on the surface of the
control panel frame.
5. Attach the membrane switch to the control panel frame by
rubbing with a soft cloth not to scratch.
Figure C-2. Graphic Sheet and Membrane Switch
Replacement
COMPONENT REPLACEMENT AND ADJUSTMENT PROCEDURE
Graphic sheet
Rubber connector
Conductor portions
Membrane
switch
Ribbon cable
of membrane
switch
Small
depression
Small backing
paper
Ribbon
cable
Control panel frame
(Rear side)
Control panel frame
Long slit
Slit
Kommentare zu diesen Handbüchern