
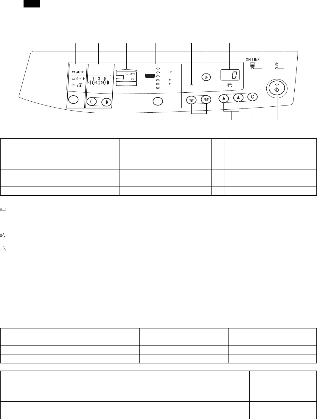
2. Operational panel
(1)
Exposure mode selector key
and indicators
(2)
Light and dark keys and
exposure indicators
(3) Alarm indicators
∗1
(4)
Copy ratio selector key and
copy ratio indicators
(5) Zoom indicator (6) Copy ratio display (%) key
(7) Display (8) ON LINE indicator (9) Power save indicator
(10) Zoom keys (11) Copy quantity keys (12) Clear key
(13) Print key and ready indicator
∗1
Drum replacement required indicator
When the drum counter reaches 17,000 copies, the indicator lights up. After 1,000 additional copies are made, the indicator starts
blinking and machine will hard-stop (after current job) until a new cartridge is installed.
Misfeed indicator
TD cartridge replacement required indicator
When toner density is lower than a specified level, the TONER DEVELOPER CARTRIDGE REPLACEMENT indicator lights up
to warn the user.
If toner is not added after approximately 10 sheets are copied, the indicator starts blinking and machine starts to supply
toner.(Toner Developer cartridg replacement indicator keeps lighting up)
If toner density is not back to specific level after two minutes, the READ indicator goes out and Toner Developer indicator starts
blinking, and the copier stops.
∗2 ON: Indicates that the machine is in the energy saving (pre-heat) mode.
Blink: Indicates that the machine is in the process of resetting from the energy saving mode or just after supplying the power.
OFF: Indicates that resetting from the energy saving mode is completed and that the fusing temperature is in ready state.
The combinations of the above display lamps are as follows: (● = ON, ✕ = OFF)
Lamp Immediately after power ON Ready Copying
Pre-heat lamp Blink ✕✕
Ready lamp ●●✕
Other lamps ●●●
Lamp
Energy saving mode (Pre-
heating)
Energy saving mode
(Auto power shut off)
Resetting from energy
saving mode
Copy is started during
resetting from energy
saving mode
Pre-heat lamp ●●Blink Blink
Ready lamp ●✕●✕
Other lamps ●✕●●
50%
64%
78%
100%
129%
200%
100%
MAX.
MIN.
5
1
/
2
8
1
/
2
x
5
1
/
2
8
1
/
2
x
8
1
/
2
11
x
8
1
/
2
11
x
8
1
/
2
14
x
8
1
/
2
11
x
ZOOM
(1)
(2)
(4)
(11)
(10)
(3)
(5)
(6)
(7)
(13)
(12)
(9)(8)
AL-1000/1010
4-2
Kommentare zu diesen Handbüchern