
Foundation Recommendations
BO06
The Foundation For Your Patio Cover/Carport
Note: Before beginning construction, check local building codes regarding footings, location and other requirements.
6
OPTION 1: Concrete Footings
All concrete minimum 2500 P.S.I.
Footing Bearing is based on soil pressures not to exceed 1,000 P.S.F..
Footing Depth to extend to below frost line but not less than 12" (30,5 cm) where new footings are used.
If posts are not anchored to a concrete slab, a footing is needed.
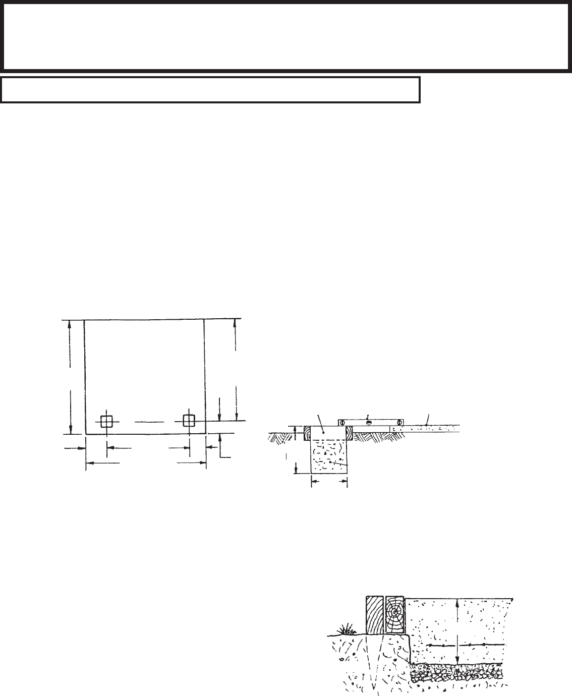
To locate footing, follow diagram below. Dig footing the minimum dimensions shown. Be sure footings are level with each other.
Dimensions may vary depending on your soil conditions, consult local codes for footing requirements.
Using 3/4" (19 mm) thick boards, frame footings. The board height will be the height required to make sure the footings and concrete
slab (if used) are level with each other. Pour concrete. Allow concrete to cure 24 hours before proceeding.
OPTION 2: Concrete Slab
All concrete minimum 2500 P. S. I.
The slab should be at least 4" (10,2 cm) thick. It must be level and flat to provide good support for the posts.
The following are the recommended materials for your foundation.
● 2 x 4's (38 mm x 89 mm) (will be removed once the concrete cures)
● Concrete ● Sheet of 6 mil plastic ● 6"x6" (15,2 cm x 15,2 cm) reinforcing mesh ● sand ● gravel
Prepare the Site/Construct a Foundation
1. Dig a rectangle, 10" (25,4 cm) deep into the ground (remove grass).
Note: Finished Slab dimensions, with lumber removed.
2. Fill up to 4" (10,2 cm) in the square with gravel, 2" (5,1 cm) of sand,
and tamp firm.
3. Cover sand with a sheet of 6 mil plastic.
4. Construct a wood frame using 2 x 4 (38 mm x 89 mm) lumber. Make reinforcing stakes.
5. Pour in concrete to fill in the hole and the frame giving a
total of 4" (10,2 cm) thick concrete. Use reinforcing mesh in embedded concrete. Be sure surface is level.
Allow 5 - 8 hours for construction, concrete cure 24 hours before proceeding, and a week to harden before driving on.
Concrete Slab
Level
Wood Frame
117 1/2" (298,5 cm)
*From wall or
Mounted 2x4/2x6
123" Min.
(312,4 cm)
7"
(17,8 cm)
Min.
116 1/4"
295,3 cm
130 1/4" Min.
330,8 cm
5 1/2"
(14,0 cm)
Min.
12"
(30,5 cm)
Min.
12" (30,5 cm)
Min.
Concrete Footing
Earth
Grade Level
6"x6" (15,2 cm x
15,2 cm) Mesh
Plastic Barrier
2" (5,1 cm) Sand
4" (10,2 cm)
Gravel Bed
Note: The depth of slab, 123" (312,4 cm), will vary
depending upon place of attachment for patio cover/
carport.
If you mount a 2x4/2x6 (38 mm x 89 mm / 38 mm x
140 mm) on wall, you will need to add 1 1/2" (3,8
cm). If you mount to the eave, you will need to add
the length of the eave.
Concrete
Earth
4" (10,2 cm) Min.
(38 mm x 89 mm / 38 mm x 140 mm)
7"
(17,8 cm)
Min.
Kommentare zu diesen Handbüchern