
ForThinkPadEdge14"andE40:
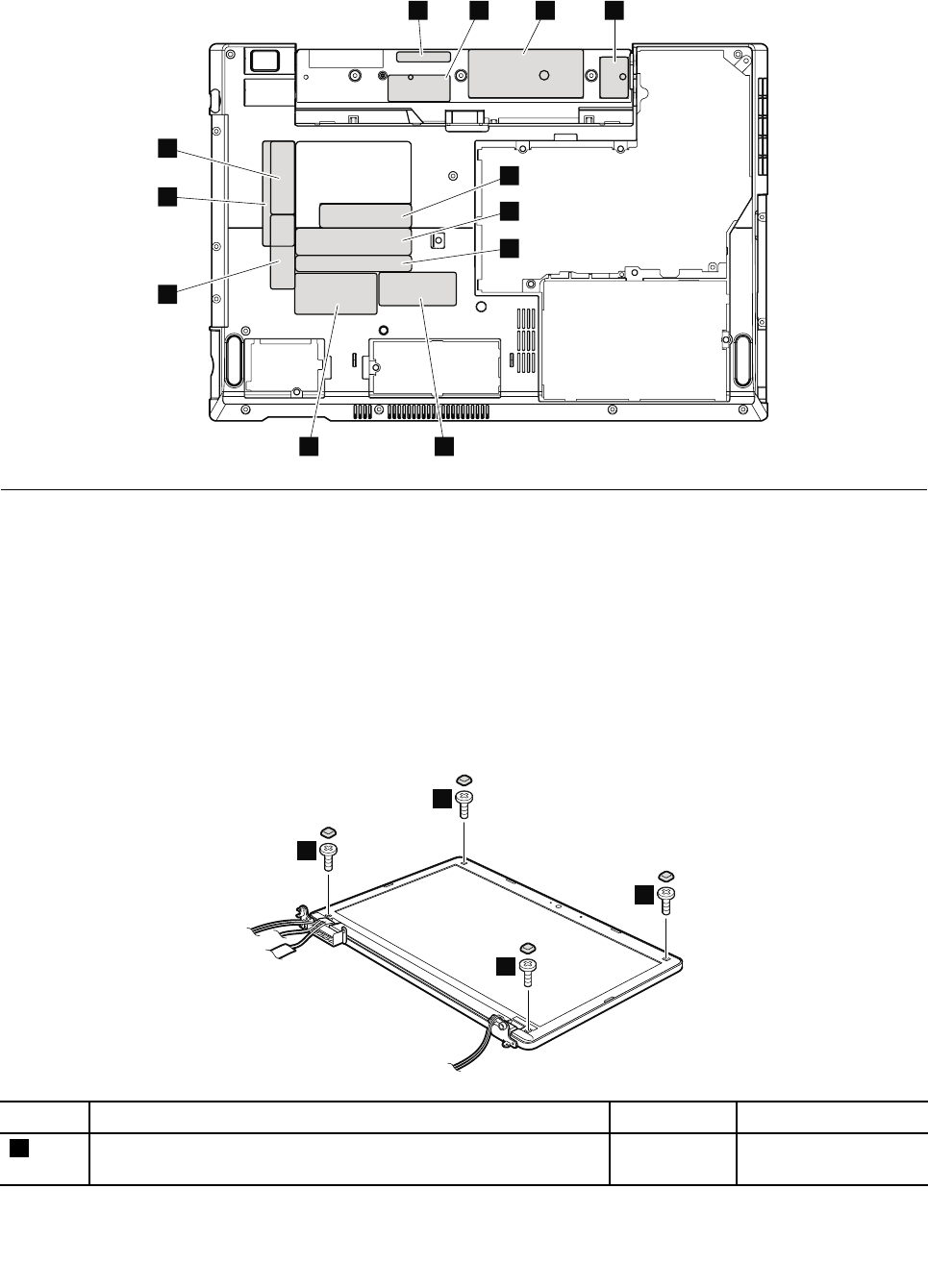
2010LCDfrontbezel
Foraccess,removetheseFRUsinorder:
•“1010Batterypack”onpage58
•“1080WirelessWANslotcoverandPCIExpressMiniCardforwirelessWAN”onpage66
•“1090Palmrestassemblywithcables”onpage69
•“1100PCIExpressMiniCardforwirelessLAN”onpage72
•“1130Keyboard”onpage75
•“1140Keyboardbezel”onpage77
•“1150LCDunit”onpage79
RemovalstepsoftheLCDfrontbezel
StepScrew(quantity)Color
Torque
1
M2×5mm,wafer-head,nylon-coated(4),withrubbercaps
Black0.181Nm
(1.85kgf-cm)
94HardwareMaintenanceManual
Kommentare zu diesen Handbüchern