
AR-168N/168L EXTERNAL VIEWS AND INTERNAL STRUCTURES 4 - 5
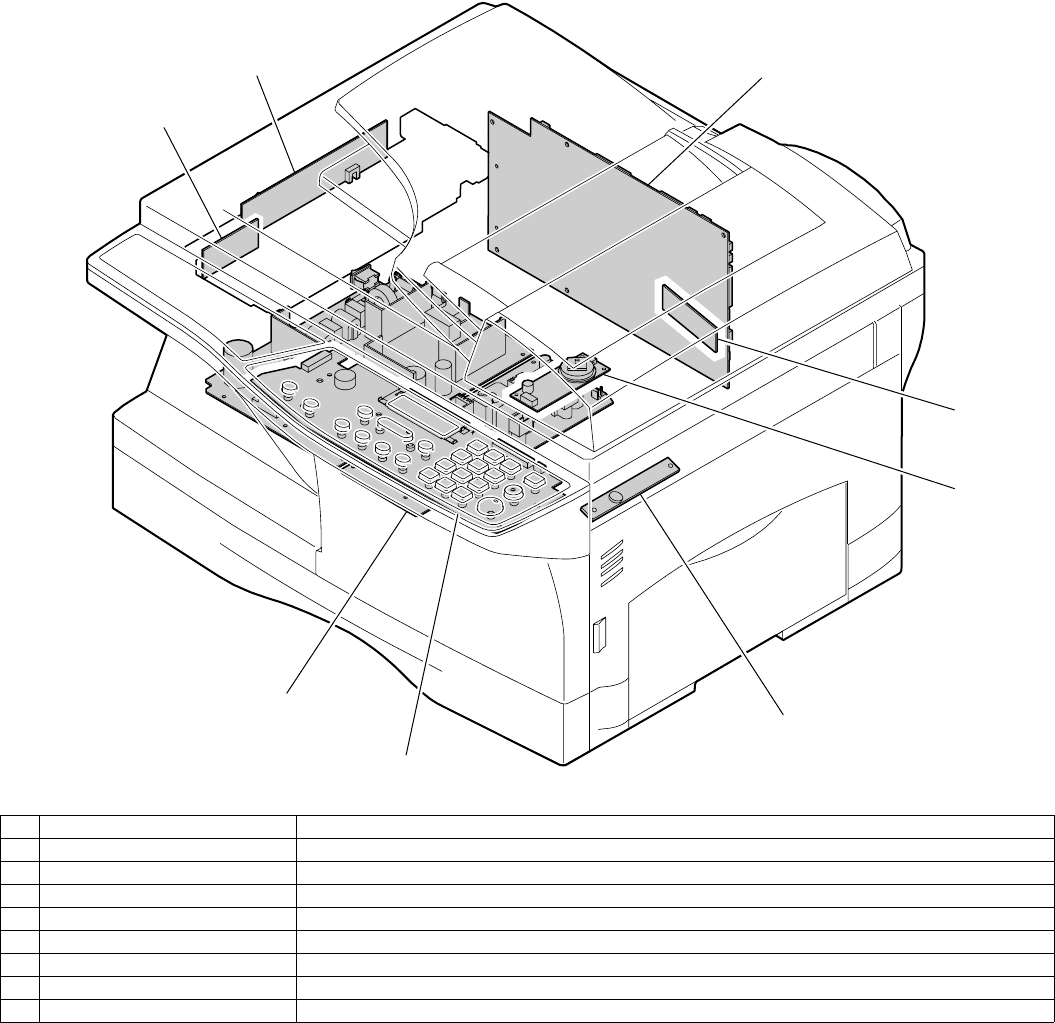
6. PWB unit
No. Name Function
1 Exposure lamp inverter PWB Exposure lamp (CCFL) control
2 Main PWB (MCU) Copier control
3 Operation PWB Operation input/display
4 Power PWB AC power input, DC voltage control, High voltage control
5 CCD sensor PWB For image scanning
6 LSU motor PWB For polygon motor drive (In the LSU)
7 TCS PWB For toner sensor control
8 LSU PWB For laser control (In the LSU)
1
5
2
8
6
7
3
4
04_EXTER.fm 5 ページ 2005年11月18日 金曜日 午後5時28分
Kommentare zu diesen Handbüchern