
AR-168N/168L ADJUSTMENTS 9 - 3
(Example)
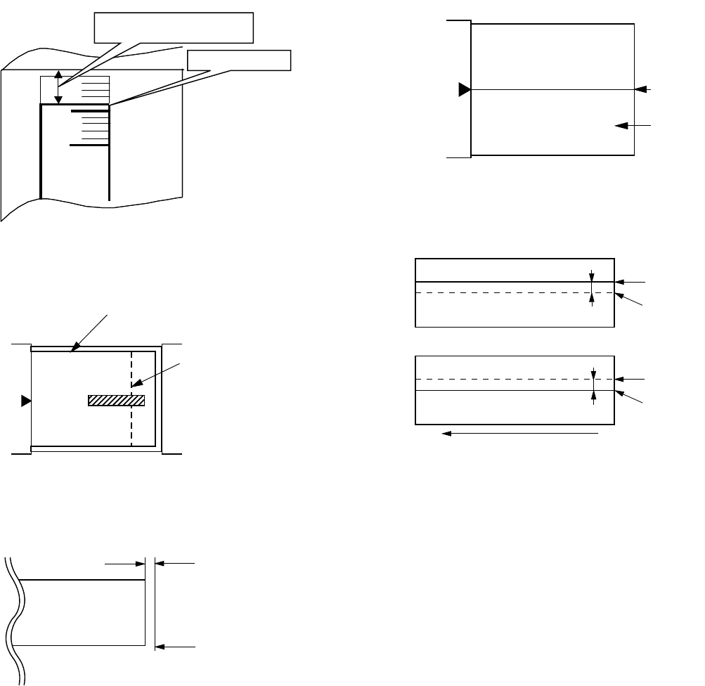
(2) Image rear edge void amount adjustment
1) Set a scale to the rear edge section of A4 or 11" x 8 1/2" paper size
as shown in the figure below, and cover it with B4 or 8 1/2" x 14"
paper.
2) Execute TC 50 - 01 to select the image rear edge void amount
adjustment mode.
The set adjustment value is displayed on the copy quantity display.
3) Make a copy and measure the void amount of image rear edge.
4) If the measurement value is out of the specified range, change the
set value and repeat the adjustment procedure.
The default value is 50.
(3) Center offset adjustment
1) Set the self-made test chart for the center position adjustment so
that its center line is aligned with the center mark of the document
guide.
• Test chart for the center position adjustment.
Draw a line at the center of A4 or 8 1/2" x 11" paper in the paper
transport direction.
2) Execute TC 50-10 to select the print center offset (cassette paper
feed) adjustment mode.
The set adjustment value is displayed on the copy quantity display.
3) Make a copy and check that the copied center line is properly
positioned.
The standard value is 0 ±2mm from the paper center.
4) If the measured value is out of the specified range, change the set
value and repeat the adjustment procedure.
When the set value is increased by 1, the copy image is shifted by
0.1mm toward the rear frame.
• For the manual paper feed, change the manual paper feed
adjustment mode and perform the similar procedures.
• Since the document center offset is automatically adjusted by the
CCD which scan the reference lines (F/R) on the back of document
guide, there is no need to adjust manually.
2. Copy density adjustment
A. Copy density adjustment timing
The copy density adjustment must be performed in the following cases:
• When maintenance is performed.
• When the developing bias/grid bias voltage is adjusted.
• When the optical section is cleaned.
• When a part in the optical section is replaced.
• When the optical section is disassembled.
• When the OPC drum is replaced.
• When the main control PWB is replaced.
• When the EEPROM on the main control PWB is replaced.
• When the memory trouble (U2) occurs.
B. Note for copy density adjustment
1) Arrangement before execution of the copy density adjustment
• Clean the optical section.
• Clean or replace the charger wire.
• Check that the voltage at the high voltage section and the
developing bias voltage are in the specified range.
5mm
10mm
Distance from the paper lead edge
to the image lead edge, H = 5mm
Image loss, R = 4mm
B4 or 8 1/2″ × 14″ paper
A4 size rear edge
Scale image
Paper rear edge
Void amount (Standard value: 2 - 3mm)
Document guide
(Copy A)
(Copy B)
2.0mm or less
2.0mm or less
Copy image
Copy paper
folding line
Copy image
Copy paper
folding line
Shift
Shift
(Paper feed direction)
09_ADJUS.fm 3 ページ 2005年11月18日 金曜日 午後5時36分
Kommentare zu diesen Handbüchern